叉车比武方案
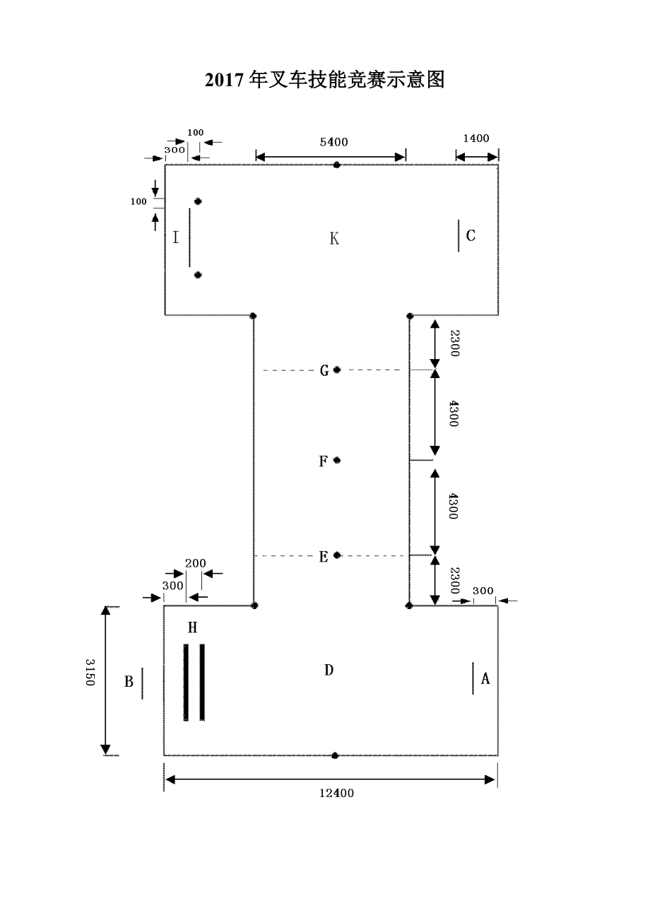
2017年叉车技能竞赛示意图一、操作流程:1、参赛选手上车后,在车库内将车摆放好(车体不出库),然后举手示意,以此向裁判员报告准备完毕,裁判示意比赛开始2、叉车由H处鸣笛起步,前行至A处取货盘,货盘上面放置2个圆管(附图一),在D区调头后将货盘放置在B处货架上(附图二)3、放置后,前行绕E杆左侧,F杆右侧,G杆左侧至I处4、将I处放在球托上(附图三)的任意一只篮球取下,在K区调头后,将篮球放置在C处的球托上(附图四)5、放置后,倒行沿G杆右侧,F杆左侧,E杆右侧,至H处停车鸣笛结束二、操作要求:1、整个操作过程,货叉高度不得超过标志杆(C处放篮球时除外),车体任何部位不得碰标志杆;轮胎不得压线2、运行中货盘上放置的圆管不能歪倒或掉落,如歪倒或掉落由工作人员扶正归位3、B、C、I处货架及球托不得移位或碰倒4、D、K区调头时,任何部位不得越过禁止线5、叉车运行路线严格按照规定方向要求行走,运行中不得来回调整车辆,货叉不得拖地取放货盘、篮球过程除外)6、篮球叉取过程中掉落,叉车退后,由工作人员重新在球托上放置;在搬运过程中掉落,由工作人员重新在车上放置,在I区放置过程中或刮碰球托造成的掉落不再重新放置。
7、车辆至H处须一次性停车,车辆不得来回调整,停放时,尾部悬挂物位于H处两线内8、停车操作过程,货叉放在地面,拉手制动,鸣笛示意比赛结束,计时员停止计时9、整个操作过程要求平稳,不得出现野蛮、违章操作等现象10、竞赛过程中,由于叉车自身故障无法继续比赛的,比赛成绩作废,待更换叉车或叉车恢复后,重新比赛11、出现下列情形的,取消比赛资格:(1)、不按比赛流程竞赛(跳过项目或选择项目比赛)的;(2)、比赛过程中,人为造成叉车及比赛道具损坏无法继续比赛的;(3)、不按规定路线行驶的;12、选手操作时间超过10分钟未完成所有项目,终止比赛,裁判记录比赛进程,裁判将提前1分钟举旗示意告知选手三、竞赛使用叉车型号:合力CPCD60-C8,右侧叉刀前端固定一球叉(附图五)竞赛场地备用一台叉车,与竞赛使用的叉车同型号、同产地,以便应急需要5002001001010210附图二单位:毫米所需器材图示长方体尺寸:1000×200×50圆管外径:32圆管高:20060700附图一70060附图三长方体尺寸:1000×180×50圆管外径:42圆管高:200附图五170032附图四 叉车技能竞赛评分表序号: 姓名: 实践成绩: 序号项目考 核 内 容扣 分1起步(1)起步时未鸣笛、未关好车门,各扣3分。
2操作过程(2)任何部位碰杆,每次扣5分,倒杆,每次扣10分3)调头时车体越过禁止线,扣3分4)所挑货盘掉落、挑翻、落地调整,每次扣5分5)圆管歪倒或掉落每只扣5分6)运行中轮胎压线一次扣3分,出线一次扣5分7)司机不得将头探出驾驶室外,如违反取消比赛资格8)S弯运行过程,货叉拖地扣3分,调整车辆每次扣5分9)货叉高度超过标志杆每次扣10分10)B处货架移位扣5分/5厘米,碰倒货架扣10分11)I处圆管歪倒、篮球掉落,每次每项扣5分12)比赛过程中,选手要求更换球托,一次扣10分13)篮球掉落,每次扣10分14)停车时调整车辆扣5分,尾部悬挂物不在两线内(以悬挂物稳定后为准)扣5分15)不按规定运行路线行驶,停止比赛,裁判记录选手比赛进度16)超10分钟,停止比赛,裁判记录选手比赛进度3结束(17)未鸣笛、未拉手刹、未将货叉落地,各扣3分4计时(1)以裁判下令后选手鸣笛计表至选手下车落地停表2)以5分钟为准,每节超10秒加减1分,不四舍五入3)分数相同时,先按比赛进度定名次,次按时间长短定名次。




